Гольф-поля мирового уровня и волшебные парковые зоны, известные яхт-клубы и фешенебельные рестораны, чистейшие пляжи, залитые солнцем 11 месяцев в году, – таковы атрибуты настоящей южной жизни на побережье Коста-дель-Соль.
План создания маленькой Венеции на побережье Коста-Брава возник в 1967 году. Тогда идея превращения топкой местности в уютный городок с южным характером казалась амбициозной. Сегодня, десятилетия спустя, можно сказать: Кастельо д’Эмпуриес приобрела невероятный колорит и стала объектом притяжения для покупателей со всего мира.
Архитектурные стили, варианты оформления недвижимости, цены, инфраструктура, настроение… На каждом из 12 испанских побережий Costa они свои… Для того чтобы выбрать идеальную недвижимость для отдыха и жизни, необходимо почувствовать дух уютных городков, опрятных испанский провинций.
Гольф-недвижимость, яхт-недвижимость – понятия, неразрывно связанные с Испанией.
Здесь располагаются поля, спроектированные ведущими гольф-архитекторами, удобные причалы, которые становятся отправными точками для путешествий вдоль побережья и престижной регаты, центрами боут-шоу.
Есть развлечения на любой вкус. Именно поэтому квартиры и дома, расположенные в непосредственной близости от полей для гольфа, яхт-клубов, становятся не просто модными, а ультрамодными.
Тот, кто хотя бы раз был в Испании, наверняка заметил одну особенность: огромное количество пожилых людей на улицах. Они читают газеты в уличных кафе, общаются под тенью цветущих деревьев и просто наслаждаются жизнью – еще бы, ведь старость в Испании заслуженно считается лучшим возрастом!
Недвижимость знаменитостей в Испании
На начало 2014 года Испания вошла в список стран, наиболее привлекательных для приобретения недвижимости. Причем в роли покупателей зачастую выступают не простые граждане, а звезды мирового уровня. Кто же именно попал под чары фламенко и фиесты?
Modernos apartamentos dúplex tipo loft en el corazón de Alicante
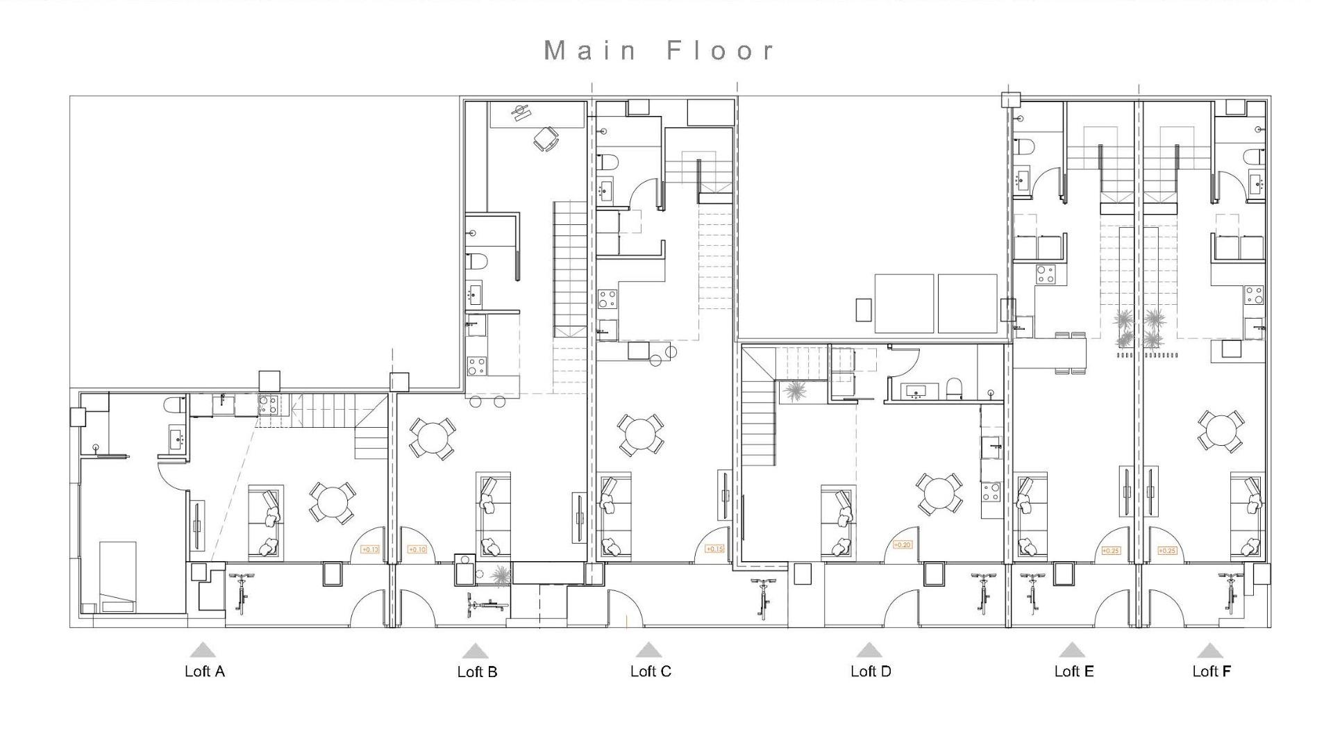
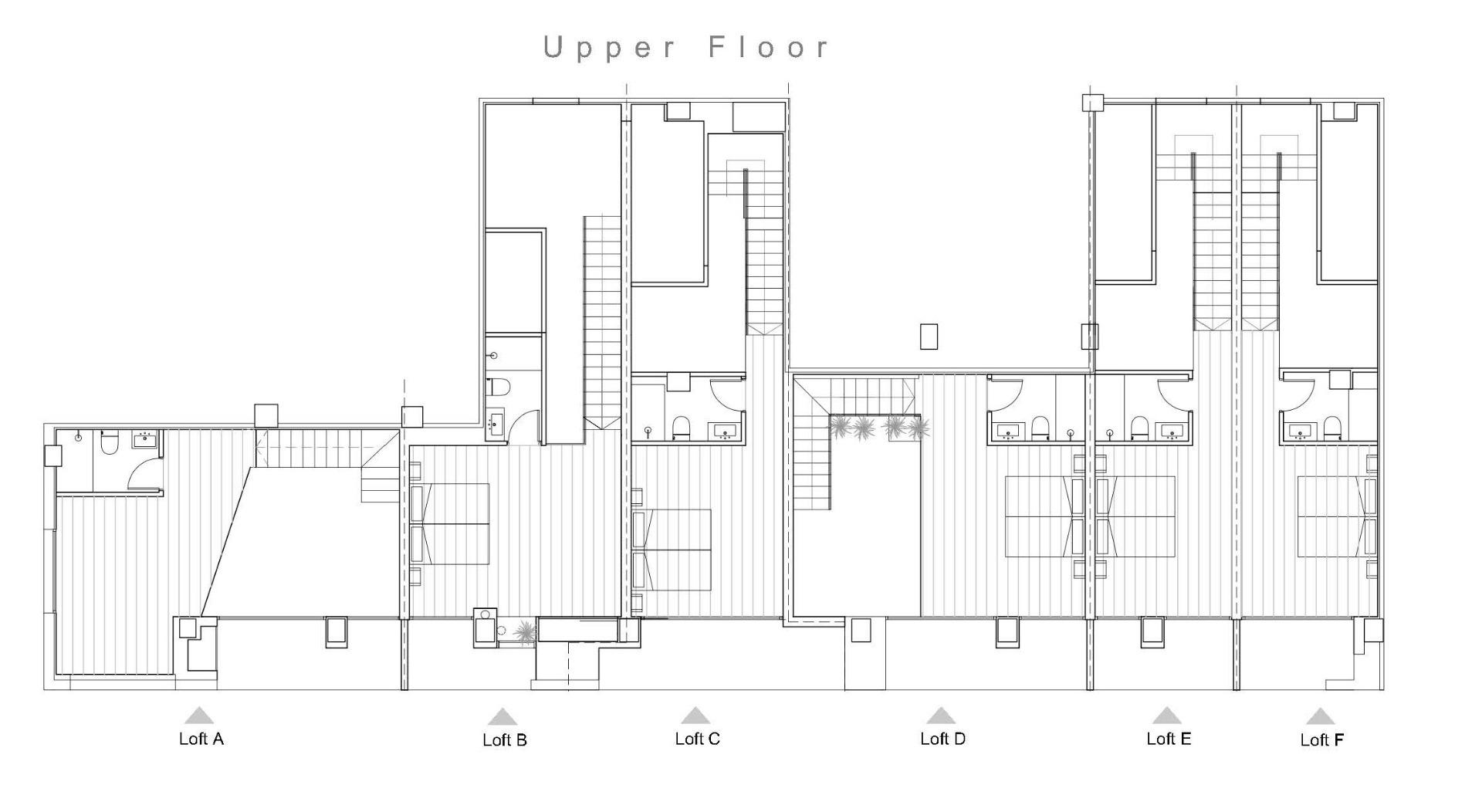
Modernos apartamentos dúplex tipo loft en el corazón de Alicante~~Exclusiva promoción nueva en el barrio de Benalúa~Descubra una oportunidad excepcional para adquirir un elegante apartamento dúplex tipo loft en Benalúa, uno de los barrios más animados y bien comunicados de Alicante. Este proyecto único transforma seis locales comerciales en desuso en modernos lofts residenciales, ofreciendo un estilo de vida urbano a solo 1 km de la costa mediterránea. Benalúa es conocido por sus tiendas locales, cafeterías, actividad cultural y su proximidad al centro de la ciudad, lo que lo convierte en una zona muy codiciada tanto por residentes como por inversores.~~Diseño contemporáneo estilo loft~Cada vivienda ha sido completamente rediseñada para ofrecer un espacio fresco, abierto y elegante. La promoción incluye lofts dúplex de 1 y 2 dormitorios con 2 baños, todos ellos con impresionantes zonas de doble altura que potencian la luz natural y proporcionan un auténtico ambiente loft. La planta superior alberga un dormitorio y un baño completo, lo que crea privacidad y comodidad.~~Con acceso independiente desde la calle y terraza privada, cada apartamento combina la arquitectura moderna con la funcionalidad. Los acabados de alta calidad, las distribuciones contemporáneas y los interiores luminosos hacen de estos lofts una opción destacada para aquellos que buscan estilo y funcionalidad.~~Comodidad y servicios comunitarios~Los residentes disfrutarán de acceso a una piscina comunitaria situada dentro del edificio, que proporciona un ambiente relajante y refrescante para los cálidos días mediterráneos. Las terrazas privadas y las entradas independientes añaden un plus de comodidad y exclusividad.~~Ubicación privilegiada cerca de los principales puntos de interés~Con una ubicación perfecta tanto para vivir como para invertir, la promoción está rodeada de servicios esenciales y principales atracciones:~Paseo marítimo de Alicante: 1 km~Estación de tren de Renfe: 0,8 km~Centro comercial El Corte Inglés: 0,7 km~Palacio de Justicia de Alicante: 0,5 km~Aeropuerto de Alicante: 12 km~Puerto deportivo y puerto de Alicante: 2 km~Campos de golf (Alicante Golf): 7 km~~La zona ofrece excelentes conexiones de transporte público, lugares culturales, zonas verdes y fácil acceso a las hermosas playas de la ciudad.~~Una inversión inteligente en el estilo de vida costero de Alicante~Tanto si busca una vivienda habitual, una propiedad vacacional o una inversión con un gran potencial de alquiler, estos apartamentos dúplex tipo loft en Benalúa representan una oportunidad única en una de las zonas más prometedoras de Alicante.~~Póngase en contacto con nosotros hoy mismo para reservar su loft exclusivo y disfrutar de una vida moderna en el corazón de Alicante.~~* Acceso a piscina pendiente de aprobación por parte de la comunidad cuando se realice el cambio de uso de los locales.~
Мы используем куки-файлы в целях индивидуализации опыта вашего просмотра и показываемого вам содержания, а также предложений, которые могут быть актуальны именно для Вас. Магазин использует как необходимые (обеспечивающие работу сайта или облегчающие пользование им) куки-файлы, например, для запоминания установок фильтрации или подключения, так и аналитические куки-файлы. Мы не будем использовать и не позволим использовать какой-либо третьей стороной данных статистического анализа в целях отслеживания или сбора любой информации, позволяющей установить личность посетителей этого сайта. Кликнув на «согласен» или продолжая поиск на сайте, вы соглашаетесь с записью и использованием куки-файлов. Свое согласие Вы можете отменить в любой момент, изменив настройки веб-браузера и удалив записанные куки-файлы. Больше информации – в политике куки-файлов