• Продажа недвижимости в Испании
  • Уникальная коллекция элитных домов
  • Большой выбор недорогих квартир в Испании
  • Послепродажное обслуживание и управление недвижимостью

Работаем для вас без посредников и выходных. Рады вам помочь!

Новости

Путешествие вдоль «солнечного берега». Элитная недвижимость Коста-дель-Соль
Гольф-поля мирового уровня и волшебные парковые зоны, известные яхт-клубы и фешенебельные рестораны, чистейшие пляжи, залитые солнцем 11 месяцев в году, – таковы атрибуты настоящей южной жизни на побережье Коста-дель-Соль.
Испанская Венеция. Недвижимость в Эмпуриабрава
План создания маленькой Венеции на побережье Коста-Брава возник в 1967 году. Тогда идея превращения топкой местности в уютный городок с южным характером казалась амбициозной. Сегодня, десятилетия спустя, можно сказать: Кастельо д’Эмпуриес приобрела невероятный колорит и стала объектом притяжения для покупателей со всего мира.
Испания. 12 побережий, 12 возможностей обрести счастье
Архитектурные стили, варианты оформления недвижимости, цены, инфраструктура, настроение… На каждом из 12 испанских побережий Costa они свои… Для того чтобы выбрать идеальную недвижимость для отдыха и жизни, необходимо почувствовать дух уютных городков, опрятных испанский провинций.
Недвижимость в Испании. Клубный гольф, яхтинг как ключевые бонусы
Гольф-недвижимость, яхт-недвижимость – понятия, неразрывно связанные с Испанией. Здесь располагаются поля, спроектированные ведущими гольф-архитекторами, удобные причалы, которые становятся отправными точками для путешествий вдоль побережья и престижной регаты, центрами боут-шоу. Есть развлечения на любой вкус. Именно поэтому квартиры и дома, расположенные в непосредственной близости от полей для гольфа, яхт-клубов, становятся не просто модными, а ультрамодными.
И старость не страшна: Испания возглавила список мест, идеальных для проживания пенсионеров
Тот, кто хотя бы раз был в Испании, наверняка заметил одну особенность: огромное количество пожилых людей на улицах. Они читают газеты в уличных кафе, общаются под тенью цветущих деревьев и просто наслаждаются жизнью – еще бы, ведь старость в Испании заслуженно считается лучшим возрастом!
«ЗВЕЗДНАЯ» Испания, или как стать соседом Криштиану Роналдо
Недвижимость знаменитостей в Испании На начало 2014 года Испания вошла в список стран, наиболее привлекательных для приобретения недвижимости. Причем в роли покупателей зачастую выступают не простые граждане, а звезды мирового уровня. Кто же именно попал под чары фламенко и фиесты?

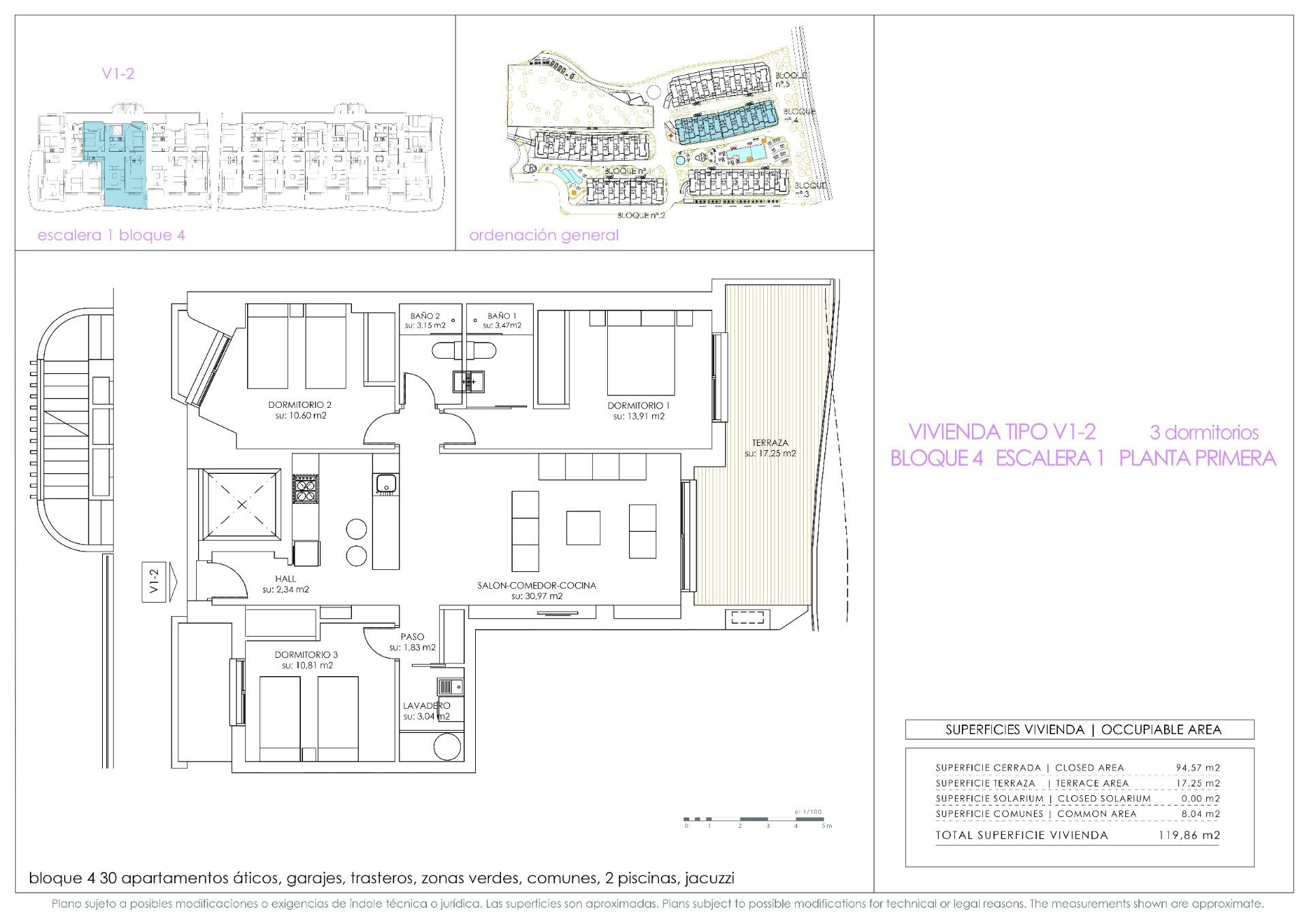
RESIDENCIAL DE OBRA NUEVA EN PLAYA FLAMENCA !!!

RESIDENCIAL DE OBRA NUEVA EN PLAYA FLAMENCA !!!~ ~ De un promotor de gran experiencia en la zona, estamos orgullosos de ofrecer este nuevo residencial recién lanzado a la venta a solo 500 m del mar en la popular zona de Playa Flamenca (Orihuela Costa).~ ~ Residencial con bonitas piscinas comunitarias, jacuzzis y bonitos jardines comunes. Todos los servicios como supermercados, bares y restaurantes, etc. se encuentran a poca distancia en un lugar muy céntrico de Orihuela Costa.~ ~ Amplia variedad de tipos para elegir: estudios, apartamentos de 1, 2 o 3 habitaciones. Pisos bajos con jardines privados o áticoss con solarium privados. Todas las viviendas cuentan con plaza de garaje y trastero incluidos en el precio.~ ~ El centro comercial Zenia Boulevard a 1 km y varios campos de golf como Villamartín, Campoamor a 5 km de este residencial lo convertirán en un lugar ideal para sus vacaciones o su vida permanente.~

   

Похожие объекты