Los campos de golf de clase mundial y los parques de magia, clubes de yates de renombre y restaurantes de moda, playas vírgenes, bañadas por el sol 11 meses del año - estos son los atributos de este vivir en el sur de la costa del sol.
Los estilos arquitectónicos, las opciones de los precios inmobiliarios, la infraestructura, el estado de ánimo ... En cada una de las 12 costas españolas Costa que cuenta ... Con el fin de elegir las vacaciones perfectas y la vida, tienes que sentir el espíritu de las ciudades acogedoras y limpias, las provincias españolas.
Celebrity Real Estate en España
A principios de 2014 España se unió a la lista de los países más atractivos para la adquisición de la propiedad. Y ya que los compradores a menudo no actúan ciudadanos de a pie, y las estrellas de clase mundial. ¿Quién en realidad cayó bajo el embrujo del flamenco y la fiesta?
Moderna villa de nueva construcción cerca del mar en Jávea
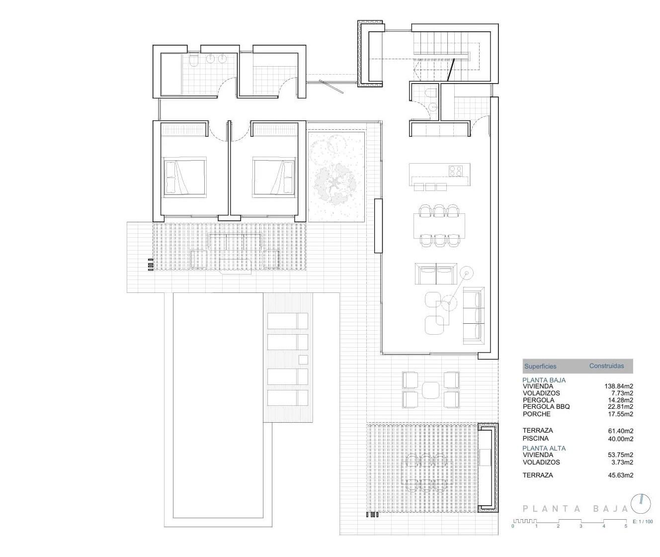
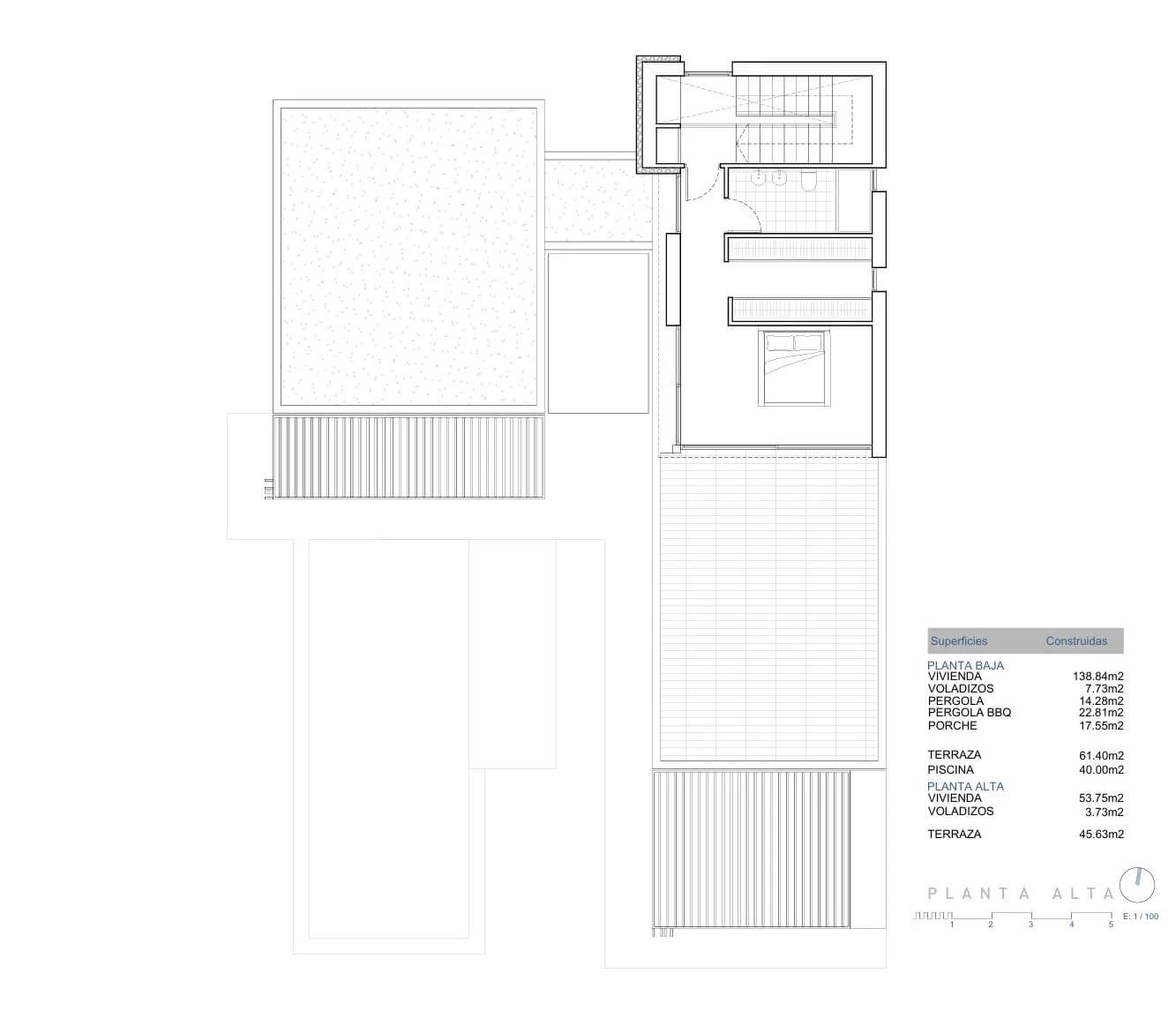
Moderna villa de nueva construcción cerca del mar en Jávea~~Vida mediterránea exclusiva en Jávea~Descubra esta impresionante villa contemporánea situada en una de las zonas más cotizadas y tranquilas de Jávea, a solo 800 metros del mar. Ubicada entre pinos y cerca de las famosas Cala de la Barraca y Cala del Portixol, esta residencia ofrece un estilo de vida privilegiado rodeado de naturaleza y belleza costera. Javea, situada en la Costa Blanca entre Alicante y Valencia, es conocida por sus aguas cristalinas, su encantador casco antiguo y su clima templado durante todo el año, lo que la convierte en uno de los destinos más deseados del Mediterráneo.~~Diseño elegante y espacios abiertos y luminosos~Diseñada para ofrecer comodidad y estilo, esta villa presenta una arquitectura moderna con líneas suaves, grandes ventanales y una fluida integración entre el interior y el exterior. La luz natural baña cada rincón, creando un ambiente cálido y acogedor, ideal tanto para vivir como para recibir invitados.~~La villa se distribuye en dos plantas e incluye~Salón y comedor diáfanos con acceso directo a las terrazas y la piscina~Cocina abierta totalmente amueblada~3 dormitorios y 2 baños, además de 1 aseo de invitados~Lavadero y despensa~Jardín privado, terrazas y zona de piscina con cocina de verano~~Suite principal privada y estilo de vida al aire libre~La planta baja incluye dos dormitorios, un baño y amplias zonas comunes. En la planta superior, el dormitorio principal ofrece un refugio privado con baño en suite, un amplio vestidor y una terraza de 45 m2, perfecta para disfrutar de las vistas del amanecer y la brisa mediterránea. El espacio exterior ha sido diseñado para el relax, con una piscina privada, terrazas para tomar el sol y un entorno exuberante que garantiza la tranquilidad y la privacidad.~~Ubicación privilegiada en la Costa Blanca Norte~Javea ofrece un estilo de vida excepcional con hermosas playas, rutas de senderismo, puertos deportivos, campos de golf y restaurantes gourmet. La ciudad se encuentra a 92 km de Alicante y a 105 km de Valencia.~~Distancias clave~Playa y Cala del Portixol: 0,8 km~Puerto y marina de Javea: 8 km~Club de golf de Javea: 10 km~Aeropuerto de Alicante: 100 km~Aeropuerto de Valencia: 125 km~~Su hogar mediterráneo le espera~Tanto si busca una residencia permanente, un refugio vacacional de lujo o una inversión de primera calidad, esta villa le ofrece privacidad, comodidad y un entorno costero excepcional. Póngase en contacto con nosotros hoy mismo para obtener más información o concertar una visita a esta exclusiva y moderna vivienda en Jávea.~
Modern apartment with a pool and 250m from PLaya del Cura
TA1088
€ 0
Nous utilisons des cookies pour personnaliser votre expérience de navigation et le contenu qui vous est présenté, ainsi que des suggestions qui pourraient vous intéresser. Le magasin utilise à la fois les cookies nécessaires (assurant le fonctionnement du site ou facilitant son utilisation), par exemple pour stocker les paramètres de filtrage ou de connexion, ainsi que des cookies analytiques. Nous n'utiliserons et n'autoriserons aucune tierce partie à utiliser des données d'analyse statistique afin de suivre ou de collecter toute information permettant d'identifier les visiteurs de ce site. En cliquant sur "J'accepte" ou en poursuivant la recherche sur le site, vous acceptez l'enregistrement et l'utilisation de cookies. Vous pouvez annuler votre consentement à tout moment en modifiant les paramètres de votre navigateur Web et en supprimant les cookies enregistrés. Plus d'informations dans – la politique de cookie.