Los campos de golf de clase mundial y los parques de magia, clubes de yates de renombre y restaurantes de moda, playas vírgenes, bañadas por el sol 11 meses del año - estos son los atributos de este vivir en el sur de la costa del sol.
Los estilos arquitectónicos, las opciones de los precios inmobiliarios, la infraestructura, el estado de ánimo ... En cada una de las 12 costas españolas Costa que cuenta ... Con el fin de elegir las vacaciones perfectas y la vida, tienes que sentir el espíritu de las ciudades acogedoras y limpias, las provincias españolas.
Celebrity Real Estate en España
A principios de 2014 España se unió a la lista de los países más atractivos para la adquisición de la propiedad. Y ya que los compradores a menudo no actúan ciudadanos de a pie, y las estrellas de clase mundial. ¿Quién en realidad cayó bajo el embrujo del flamenco y la fiesta?
Villa contemporánea con vistas panorámicas al mar en La Fustera, Benissa Costa
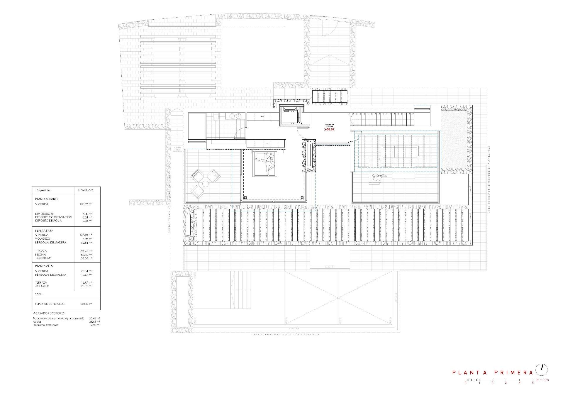
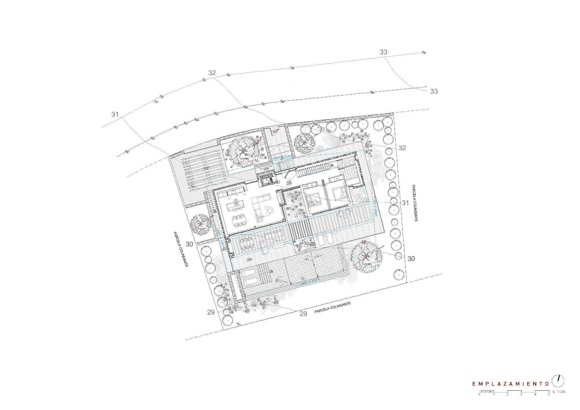
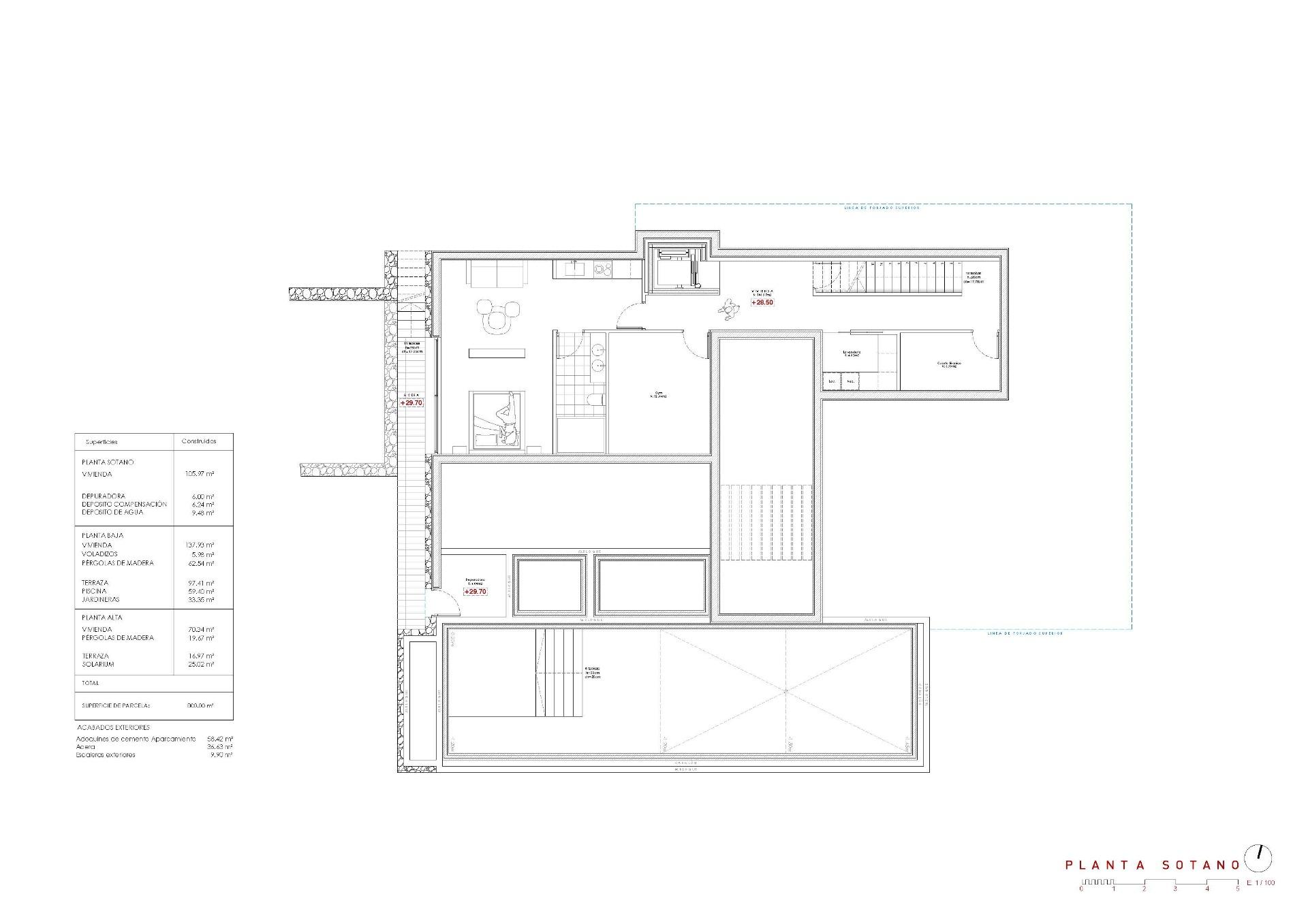
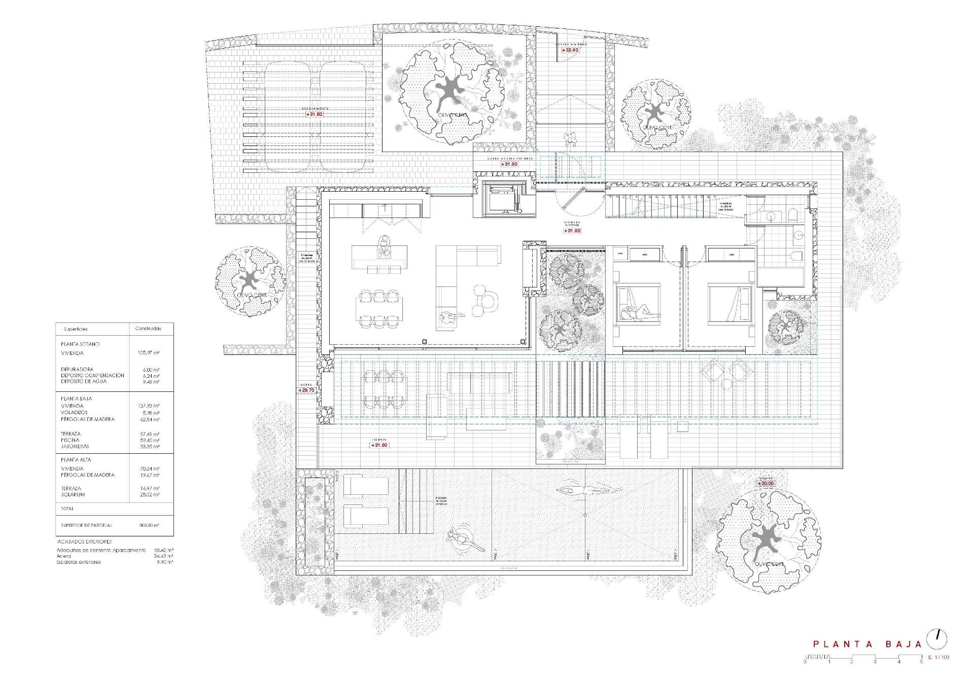
Villa contemporánea con vistas panorámicas al mar en La Fustera, Benissa Costa~~Esta exclusiva villa de nueva construcción, diseñada por un arquitecto de renombre y desarrollada por un promotor local con más de 20 años de experiencia, se encuentra en una parcela de 800 m² a pocos pasos de la playa de La Fustera.~~La arquitectura, que combina la calidez mediterránea con la elegancia contemporánea, integra piedra natural, madera y tonos neutros suaves, integrándose a la perfección en el paisaje costero.~~Con una superficie total construida de 716 m² distribuidos en tres niveles (sótano, planta baja y primera planta), la villa ofrece un equilibrio perfecto entre funcionalidad, diseño y comodidad.~~Planta sótano~La planta baja, de 105,97 m², está diseñada para ser práctica y lúdica. Incluye un gimnasio totalmente equipado, un lavadero y zonas técnicas, con la opción de adaptar espacios adicionales como bodega, cine o sala polivalente. En esta planta también se encuentran el sistema de filtración de la piscina y los depósitos de agua, lo que garantiza una gestión eficiente de todas las instalaciones técnicas.~~Planta baja~La planta principal, de 137,93 m², se desarrolla en una luminosa distribución diáfana que captura la esencia de la vida mediterránea. El espacioso salón, el comedor y la cocina se abren a través de grandes ventanales que van del suelo al techo a la terraza principal y a la piscina infinita, enmarcando las increíbles vistas panorámicas al mar que definen el carácter de esta vivienda.~Dos dormitorios dobles, un cuarto de baño completo y un aseo completan esta planta, proporcionando comodidad y funcionalidad. En el exterior, una pérgola de madera da sombra a las zonas de salón y comedor al aire libre, rodeadas de exuberantes jardines, terrazas y una piscina infinita de 59,40 m² que se funde visualmente con el mar.~~Primera planta~La planta superior, con 70,19 m², está reservada para la suite principal, un refugio privado con vestidor, baño en suite y una gran terraza privada con impresionantes vistas al mar Mediterráneo. Un segundo dormitorio o espacio de oficina completa esta planta, que también da acceso a un solárium de 25,02 m², ideal para relajarse bajo el sol y disfrutar de la serenidad del entorno.~~Exterior y ubicación~Situada en una tranquila calle residencial rodeada de modernas villas, esta propiedad goza de una ubicación excepcional a solo 3 minutos a pie de la playa de La Fustera (150 m), el Mandala Beach Bar & Restaurant y servicios esenciales como supermercados y servicios locales.~~Diseñada con énfasis en la luz, el espacio y la vida interior-exterior sin fisuras, esta villa encarna el estilo de vida mediterráneo moderno: elegante, relajado y en perfecta armonía con sus espectaculares vistas panorámicas al mar.~~Asegúrese la villa de sus sueños en La Fustera, Benissa Costa, y disfrute del mejor estilo de vida mediterráneo con impresionantes vistas al mar y un confort inigualable.~
Modern apartment with a pool and 250m from PLaya del Cura
TA1088
€ 0
Nous utilisons des cookies pour personnaliser votre expérience de navigation et le contenu qui vous est présenté, ainsi que des suggestions qui pourraient vous intéresser. Le magasin utilise à la fois les cookies nécessaires (assurant le fonctionnement du site ou facilitant son utilisation), par exemple pour stocker les paramètres de filtrage ou de connexion, ainsi que des cookies analytiques. Nous n'utiliserons et n'autoriserons aucune tierce partie à utiliser des données d'analyse statistique afin de suivre ou de collecter toute information permettant d'identifier les visiteurs de ce site. En cliquant sur "J'accepte" ou en poursuivant la recherche sur le site, vous acceptez l'enregistrement et l'utilisation de cookies. Vous pouvez annuler votre consentement à tout moment en modifiant les paramètres de votre navigateur Web et en supprimant les cookies enregistrés. Plus d'informations dans – la politique de cookie.