Los campos de golf de clase mundial y los parques de magia, clubes de yates de renombre y restaurantes de moda, playas vírgenes, bañadas por el sol 11 meses del año - estos son los atributos de este vivir en el sur de la costa del sol.
Los estilos arquitectónicos, las opciones de los precios inmobiliarios, la infraestructura, el estado de ánimo ... En cada una de las 12 costas españolas Costa que cuenta ... Con el fin de elegir las vacaciones perfectas y la vida, tienes que sentir el espíritu de las ciudades acogedoras y limpias, las provincias españolas.
Celebrity Real Estate en España
A principios de 2014 España se unió a la lista de los países más atractivos para la adquisición de la propiedad. Y ya que los compradores a menudo no actúan ciudadanos de a pie, y las estrellas de clase mundial. ¿Quién en realidad cayó bajo el embrujo del flamenco y la fiesta?
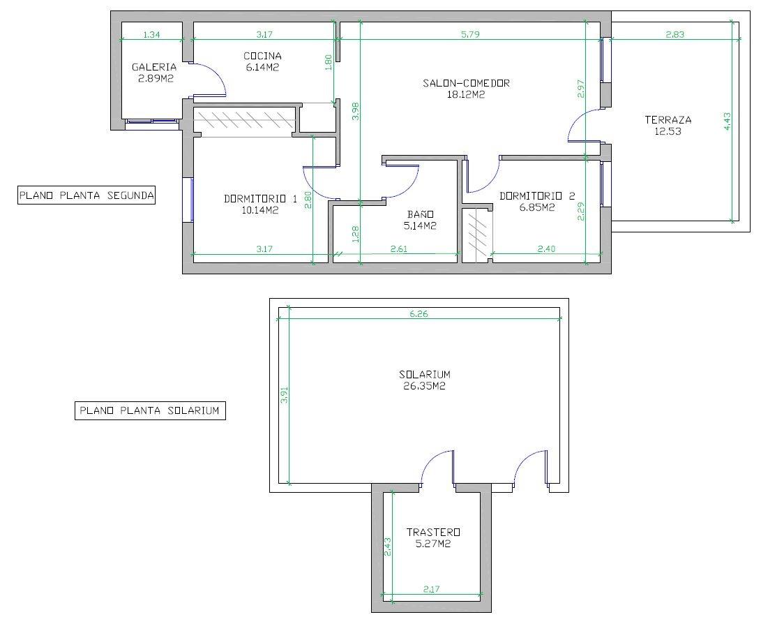
Villas Don Sancho, Acogedor Ático con solárium privado y orientación sur
Ático con Gran Terraza en la Azotea en Orihuela Costa – Residencial Don Sancho V~~Tenemos el placer de presentar este precioso ático de 2 dormitorios, situado en el popular residencial Don Sancho V. Ubicado en una zona tranquila y demandada de Orihuela Costa, es ideal tanto como vivienda habitual como para vacaciones, en pleno clima mediterráneo con más de 300 días de sol al año.~~La vivienda ofrece:~~2 dormitorios con armarios empotrados – luminosos, cómodos y funcionales.~~1 baño completo.~~Cocina semiabierta con lavadero independiente.~~Salón-comedor amplio y luminoso.~~Terraza acristalada con vistas despejadas, aprovechable durante todo el año.~~El gran atractivo de esta vivienda es su terraza privada en la azotea de 27 m²,~el lugar perfecto para disfrutar del sol.~Además, cuenta con un amplio trastero con múltiples posibilidades: espacio de almacenaje extra, cocina de verano, despacho, rincón de entrenamiento, sala de juegos o taller de aficiones- alguno lo tiene incluso como un pequeño dormitorio para una siestecita.~~Gracias a su orientación sur, la vivienda goza de mucha luz natural y de un ambiente cálido y acogedor. Se vende amueblada y lista para entrar a vivir.~~Zonas comunes:~~Piscina comunitaria~~Áreas ajardinadas~~Ubicación:~La propiedad cuenta con una localización estupenda cerca de supermercados, hospital, colegios, restaurantes internacionales y centro comercial.~Además, está a pocos minutos andando de la animada zona de Punta Prima y de las hermosas playas de Orihuela Costa.~~✨ ¡No dejes pasar esta oportunidad – contáctanos hoy mismo para organizar una visita! Te encantara!~~~
Utilizamos cookies para personalizar su experiencia de navegación y el contenido que se le muestra, así como sugerencias que pueden ser relevantes para usted. La tienda utiliza las cookies necesarias (que garantizan el funcionamiento del sitio o facilita su uso), por ejemplo, para almacenar configuraciones de filtrado o conexión, así como cookies analíticas. No utilizaremos ni permitiremos que terceros utilicen datos de análisis estadísticos para rastrear o recopilar cualquier información que le permita identificar a los visitantes de este sitio. Al hacer clic en "Acepto" o continuar la búsqueda en el sitio, usted acepta la grabación y el uso de cookies. Puede cancelar su consentimiento en cualquier momento cambiando la configuración de su navegador web y eliminando las cookies grabadas. Más información - en la política de cookies