Golf courses and world-class magic parks, well-known yacht clubs and fashionable restaurants, unspoiled beaches, sun-drenched 11 months of the year - these are the attributes of this southern living on the Costa del Sol.
Los estilos arquitectónicos, las opciones de los precios inmobiliarios, la infraestructura, el estado de ánimo ... En cada una de las 12 costas españolas Costa que cuenta ... Con el fin de elegir las vacaciones perfectas y la vida, tienes que sentir el espíritu de las ciudades acogedoras y limpias, las provincias españolas.
Celebrity Real Estate en España
A principios de 2014 España se unió a la lista de los países más atractivos para la adquisición de la propiedad. Y ya que los compradores a menudo no actúan ciudadanos de a pie, y las estrellas de clase mundial. ¿Quién en realidad cayó bajo el embrujo del flamenco y la fiesta?
Modern New Build Villa with Luxury Features in Javea
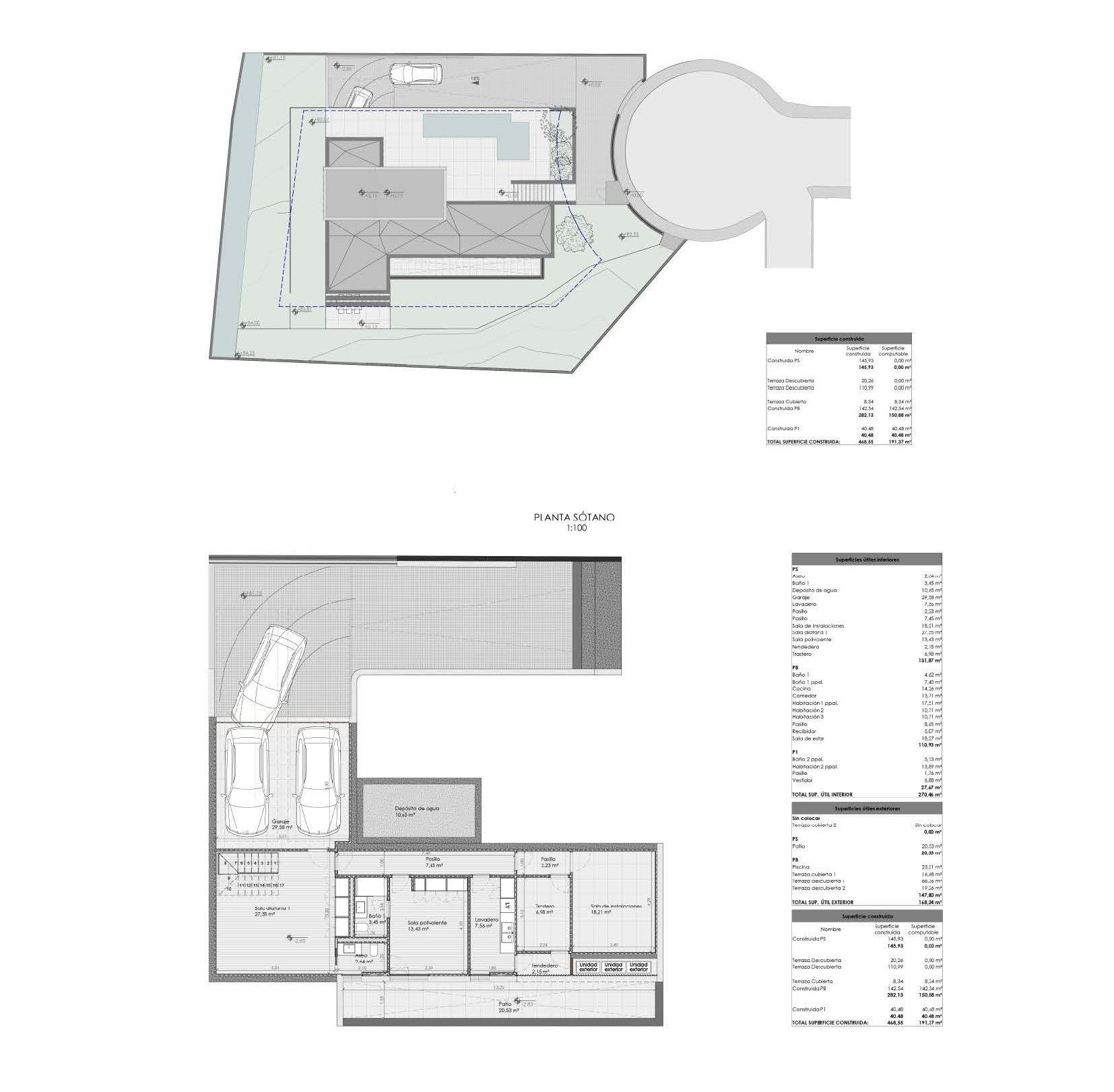
Modern New Build Villa with Luxury Features in Javea~~Contemporary Mediterranean Living on the Costa Blanca~This stunning detached new build villa in Javea combines high quality finishes, elegant design and optimal functionality across three spacious levels. Located in one of the most desirable coastal towns in the Costa Blanca North, the property offers a peaceful residential environment surrounded by green mountains, natural parks and beautiful beaches. Javea is renowned for its crystal clear waters, traditional gastronomy and Mediterranean lifestyle, making it an ideal location for both permanent living and investment.~~Spacious Basement Designed for Versatility~The basement level is thoughtfully designed to meet modern lifestyle needs. It includes an open garage for two cars, a bathroom, a guest toilet, an open concept room, a multipurpose room and a patio that brings natural light into the space. This floor provides endless possibilities, whether you envision a gym, entertainment room, office or guest suite.~~Elegant Ground Floor with Connected Living Spaces~The ground floor features a bright living dining room that integrates seamlessly with the fully equipped kitchen, creating a perfect area for family gatherings. An entrance hall, guest toilet and hallways add practicality and flow. This level includes two comfortable bedrooms sharing a modern bathroom and a generous master bedroom with an en suite bathroom, offering privacy and comfort.~~Luxurious Upper Floor Master Suite~The upper floor is dedicated to a second master bedroom, providing an exclusive retreat with its own en suite bathroom, dressing room and hallway. This private space ensures comfort and tranquillity with beautiful views of the surrounding green landscapes.~~Outdoor Living Designed for the Mediterranean Climate~The exterior areas of the property are created for enjoying outdoor living all year round. It features two covered terraces and two uncovered terraces on the ground floor. One of the covered terraces surrounds the swimming pool, perfect for summer relaxation, while the uncovered terrace next to the kitchen is ideal for outdoor dining and gatherings.~~Equipped with underfloor heating and ducted air conditioning, the villa guarantees comfort in every season.~~Prime Location in Javea~El Arenal Beach 3 km~Javea Port and Marina 7 km~Javea Golf Club 3 km~Alicante Airport 100 km~Valencia Airport 125 km~~Your Mediterranean Home Awaits~Whether you are looking for a luxury residence, a holiday home or a secure long term investment, this villa offers an exceptional lifestyle in Javea. Contact us today to arrange a visit and discover your future home on the Costa Blanca.~
Modern apartment with a pool and 250m from PLaya del Cura
TA1088
€ 0
Utilizamos cookies para personalizar su experiencia de navegación y el contenido que se le muestra, así como sugerencias que pueden ser relevantes para usted. La tienda utiliza las cookies necesarias (que garantizan el funcionamiento del sitio o facilita su uso), por ejemplo, para almacenar configuraciones de filtrado o conexión, así como cookies analíticas. No utilizaremos ni permitiremos que terceros utilicen datos de análisis estadísticos para rastrear o recopilar cualquier información que le permita identificar a los visitantes de este sitio. Al hacer clic en "Acepto" o continuar la búsqueda en el sitio, usted acepta la grabación y el uso de cookies. Puede cancelar su consentimiento en cualquier momento cambiando la configuración de su navegador web y eliminando las cookies grabadas. Más información - en la política de cookies