Golf courses and world-class magic parks, well-known yacht clubs and fashionable restaurants, unspoiled beaches, sun-drenched 11 months of the year - these are the attributes of this southern living on the Costa del Sol.
Los estilos arquitectónicos, las opciones de los precios inmobiliarios, la infraestructura, el estado de ánimo ... En cada una de las 12 costas españolas Costa que cuenta ... Con el fin de elegir las vacaciones perfectas y la vida, tienes que sentir el espíritu de las ciudades acogedoras y limpias, las provincias españolas.
Celebrity Real Estate en España
A principios de 2014 España se unió a la lista de los países más atractivos para la adquisición de la propiedad. Y ya que los compradores a menudo no actúan ciudadanos de a pie, y las estrellas de clase mundial. ¿Quién en realidad cayó bajo el embrujo del flamenco y la fiesta?
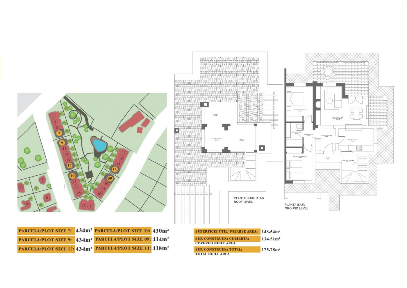
KEY READY SEMI-DETACHED VILLA IN FUENTE ALAMO, MURCIA
KEY READY SEMI-DETACHED VILLA IN FUENTE ALAMO, MURCIA~~Residential of townhouses, independent and semi-detached villas in Fuente Álamo, Murcia.~~There are seven different models of houses to choose from, designed to suit everyone’s taste. ~~Rustic designs combined with top quality materials and a focus on comfortable living space there is something for everyone.~The residents of this private community of beautiful, spacious homes will also be able to enjoy their own communal gardens and swimming pools.~~This unusual design semi-detached villa has 2 bedrooms and 1 bathroom, independent kitchen, living room with patio doors leading onto the covered porch and semi covered roof top terrace.~~An options for a private pool at an extra cost.~~~Fuente Álamo de Murcia is a town and municipality in the Region of Murcia, southern Spain. It is situated 22 km northwest of Cartagena and 35 km south west of Murcia. ~~The town lies in the basin of the Mar Menor surrounded by the mountains of Algarrobo, Los Gómez, Los Victorias and the Carrascoy.~The water from these mountains flows down into the Rambla de Fuente Álamo and then onto the Mar Menor. ~~Fuente Álamo located 30 minutes from Murcia - Corvera airport.~
Modern apartment with a pool and 250m from PLaya del Cura
TA1088
€ 0
Utilizamos cookies para personalizar su experiencia de navegación y el contenido que se le muestra, así como sugerencias que pueden ser relevantes para usted. La tienda utiliza las cookies necesarias (que garantizan el funcionamiento del sitio o facilita su uso), por ejemplo, para almacenar configuraciones de filtrado o conexión, así como cookies analíticas. No utilizaremos ni permitiremos que terceros utilicen datos de análisis estadísticos para rastrear o recopilar cualquier información que le permita identificar a los visitantes de este sitio. Al hacer clic en "Acepto" o continuar la búsqueda en el sitio, usted acepta la grabación y el uso de cookies. Puede cancelar su consentimiento en cualquier momento cambiando la configuración de su navegador web y eliminando las cookies grabadas. Más información - en la política de cookies